Willkommen in Ihrem neuen Zuhause in Küps / Schmölz! Dieses charmante und gepflegte Mehrfamilienhaus, das ursprünglich im Jahr 1953 erbaut wurde, bietet eine hervorragende Gelegenheit für Kapitalanleger und ist voll vermietet. Auf einem großzügigen Grundstück von ca. 654 m² erstreckt sich dieses dreistöckige Gebäude mit einer gesamten Wohnfläche von ca. 230 m² und einer Nutzfläche von ca. 260 m².
Auch ein “Mehrgenerationenwohnen” ist aufgrund der sehr guten Aufteilung denkbar.
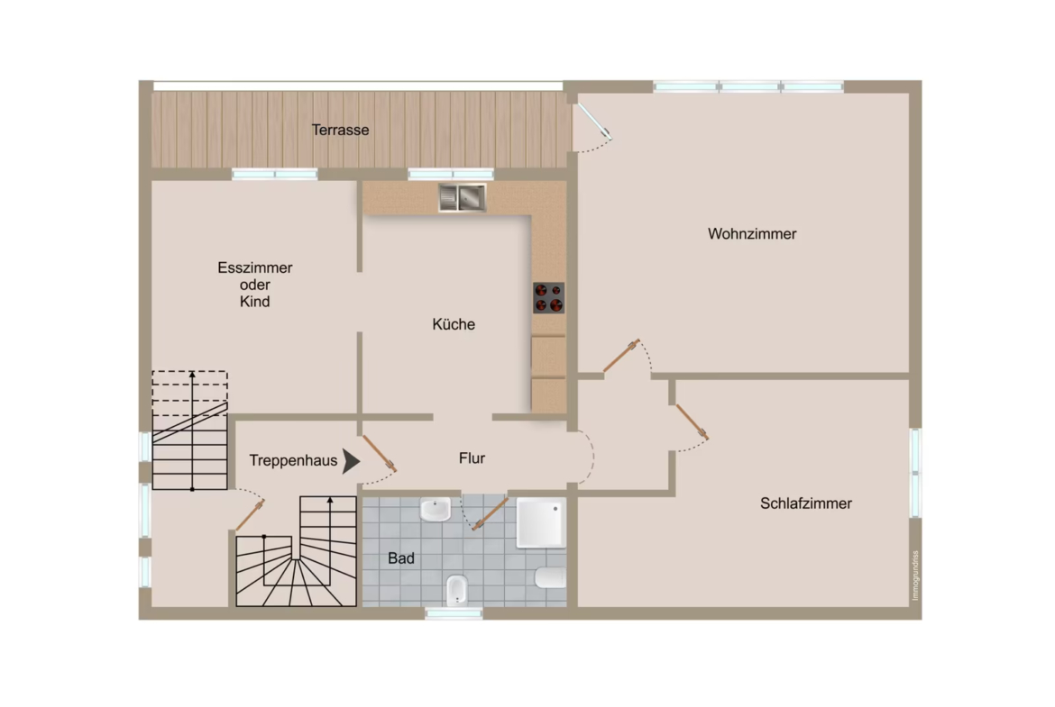
Das Mehrfamilienhaus besteht aus sieben Zimmern, darunter fünf Schlafzimmer und drei Badezimmer. Die Badezimmer im Erdgeschoss, sowie im Obergeschoss wurden 2021 kernsaniert. Die normale Ausstattungsqualität der Wohnungen ist hochwertig und funktional, was sich in der vollen Vermietung widerspiegelt.
Jede der Einheiten verfügt über ein privates Kellerabteil, sodass ausreichend Stauraum vorhanden ist. Die Wärmeversorgung erfolgt über eine effiziente Gasheizung aus dem Jahr 2003, die den heutigen Energienormen entspricht.
Ein besonderes Highlight sind die großzügigen Balkone, die wunderbare Gelegenheiten bieten, die Ruhe des angrenzenden Gartens zu genießen, der zur gemeinschaftlichen Nutzung bereitsteht. Die Außenanlage umfasst zudem zwei Garagen und zwei Stellplätze, die den Wohnkomfort der Mieter maximieren.
Dieses Mehrfamilienhaus in Küps / Schmölz vereint den Charme eines gepflegten Altbaus mit den Vorzügen zeitgemäßer Sanierung. Nutzen Sie die Gelegenheit, in eine wertbeständige Immobilie zu investieren, die durch ihre exzellente Lage und den umfassend guten Zustand überzeugt. Entdecken Sie das volle Potenzial dieses Hauses und treten Sie mit uns in Kontakt, um mehr Informationen zu erhalten oder eine Besichtigung zu vereinbaren!
Ausstattung
- gepflegter Allgemeinzustand
- Alle Wohnungen vermietet EG Kaltmiete 600,00 EUR
OG Kaltmiete 600,00 EUR
DG Kaltmiete 360,00 EUR
Mieteinnahmen pro Monat 1560,00 EUR
- Anbau 1977
- 2 Solarmodule für Warmwasseraufbereitung
- Ausbau Dachgeschoss 1993
- EG + OG neuer Laminatboden
- Überdachter Freisitz zur gemeinsamen Nutzung hinter dem Haus
- großer Garten
- Gerätehaus über Garage
- ruhige Wohnsiedlung
Weitere Angaben
Verfügbar ab: ab sofort
Objektzustand: gepflegt
Qualität der Ausstattung: Standard
Käuferprovision: 3,57%
Grundstücksfläche: ca. 654 m²
Nutzfläche: ca. 260 m²
Lagebeschreibung
Dieses gepflegte Mehrfamilienhaus befindet sich in einem ruhigen Gegend von Küps im Ortsteil Schmölz, einer malerischen Gemeinde in Oberfranken. Die Region zeichnet sich durch ihre idyllische Landschaft und ihr einladendes Umfeld aus. Schmölz bietet eine angenehme Kombination aus ländlichem Flair und der Nähe zu allen wichtigen Annehmlichkeiten.
Die Nachbarschaft ist geprägt von gepflegten Einfamilienhäusern, die eine freundliche und familienfreundliche Atmosphäre schaffen. In wenigen Fahrtminuten erreichen Sieh sämtliche Einrichtungen des täglichen Bedarfs, darunter Einkaufsmöglichkeiten, Schulen und Arztpraxen. Ein Kindergarten befinden sich direkt im Ort.
Für Naturliebhaber bietet die Umgebung zahlreiche Möglichkeiten für Freizeitaktivitäten im Freien, wie Wander- und Radwege, die die reizvolle fränkische Landschaft erkunden lassen. Die gute Anbindung an das Verkehrsnetz ermöglicht zudem eine schnelle Erreichbarkeit der umliegenden Städte, was die Lage sowohl für Pendler als auch für Ruhesuchende besonders attraktiv macht.
Sonstiges
Objektbezogene Angaben beruhen auf Informationen unseres Auftraggebers. Trotz regelmäßiger Prüfung von Daten, Bildern und Informationen übernehmen wir keine Haftung für die Richtigkeit der Angaben oder die Verfügbarkeit des Angebotes.
Die Käuferprovision beträgt 3,57 % inkl. der gesetzlichen MwSt. und ist nach notarieller Beurkundung fällig.
Energie
Energieausweis: Energiebedarfsausweis
Wesentliche Energieträger: GAS
Endenergiebedarf: 235.8 kWh/(m²*a)
Energieeffizienzklasse: G
Baujahr (gemäß Energieausweis): 1953
Wesentliche Energieträger: Gas
Anbieter-Objekt-ID: 2025-0020